• INICIO
  • ESTUDIO
  • PROYECTOS
  • CONTACTO

REHABILITACION . RESTAURACION

Restauración de fachadas y cubiertas del inmueble asociado al BIC "Monasterio de la Trinidad" en Valencia

  • Restauración Iglesia del Carmen
    en Valencia
  • Habilitación de edificio
    en Valencia
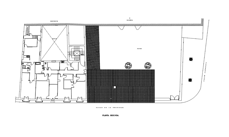
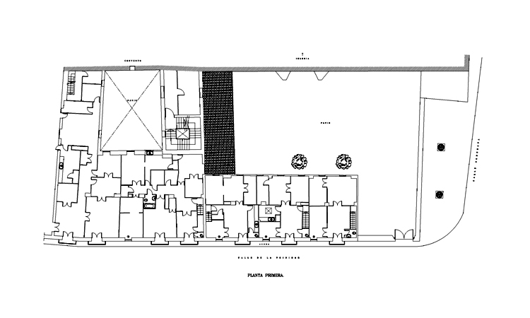
  • Restauración inmueble Trinidad
    en Valencia
side
side
side
side
side
side
side
side
  •  
  • thumbnail
  • thumbnail
  • thumbnail
  • thumbnail
  • thumbnail
  • thumbnail
  • thumbnail
  • thumbnail
logo

JAVIER CAMPOS GRANELL, Arquitectura y Urbanismo  •   T +34 606190478  •   estudio@jcgarquitectura.es